VILLA SINGOLA CON 5 CAMERE
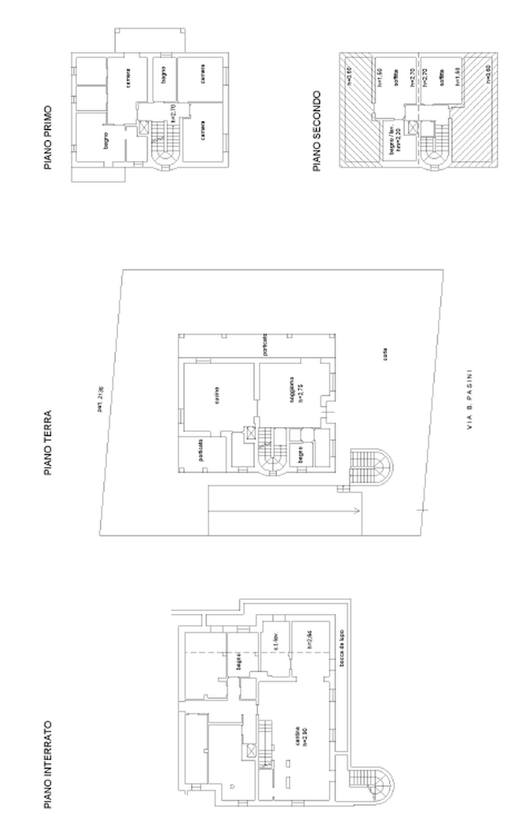
Villa singola di ampia metratura, inserita in un prestigioso e recente contesto residenziale verde e riservato, ideale per chi desidera indipendenza, privacy e spazi davvero generosi. La proprietà si sviluppa su un lotto di oltre 600 mq, con giardino privato e distribuita su tre livelli oltre un meraviglioso piano seminterrato. Una casa importante, pensata per una famiglia che cerca ambienti ariosi, ben organizzati e capaci di unire design e comfort quotidiano. La particolare location, confinante con i giardini di altre ville singole garantisce massima sicurezza abitativa. Il piano terra è caratterizzato da una zona living accogliente e luminosa con belle vetrate d'angolo ed elegante caminetto, una grande cucina separata da funzionali porte scorrevoli a scomparsa. Sia la cucina che la zona salotto si affacciano su un bel porticato che circonda tutto il perimetro a collegare e sfruttare al massimo anche gli spazi esterni. La cucina dalle finiture di pregio, ospita anche un utile locale dispensa finestrato oltre che un comodo montacarichi che serve tutti i livelli dell'abitazione . Completano il piano terra un locale studiolo finestrato attualmente adibito a guardaroba, un ripostiglio ed un bagno di servizio anch'esso finestrato. Il primo piano ospita la zona notte principale composta da due camere matrimoniali servite da un ampio bagno con doccia, è presente poi una esclusiva master bedroom pensata come una vera suite privata: bagno en suite con ampia doccia con vetrata sulla camera, vasca Jacuzzi, due cabine armadio riservate e due balconi privati; una soluzione unica che regala comfort, privacy e una qualità abitativa di livello superiore. Al secondo ed ultimo piano si trovano altre due ampie stanze attualmente adibite a studio e camera, anch'esse servite da bagno, perfette per figli, ospiti, o studio. Completa la proprietà un importante piano interrato composto da una spazioso locale/taverna con caminetto e forno per pizza, cucina abitabile, cantina vini, un grande locale tecnico/ lavanderia e tre altri splendidi ambienti di cui attualmente uno è adibito a zona fitness con piccola palestra e sauna. Nell'interrato è stata realizzata una intercapedine/scavo perimetrale di isolamento rispetto al terreno circostante che garantisce un ottimo isolamento rispetto all'umidità ed areazione ad ogni ambiente. Collegata all'abitazione vi è una grande autorimessa di 110mq, una metratura che offre comodità reale per più auto e per tutta la parte accessoria della casa. Dal punto di vista tecnico, l’immobile è stato realizzato nel 2010 con grande attenzione alla qualità costruttiva e all’efficienza energetica. È in classe energetica "A" e la struttura è antisismica, adeguato cappotto esterno, tetto ventilato con isolamento, infissi in legno di qualità certificata, porta blindata, riscaldamento a pavimento su tutti i livelli con regolazione per zone, climatizzazione a pompe di calore con split. Caldaia a condensazione integrata con pannelli solari per acqua termosanitaria e impianto fotovoltaico da circa 2,8 kW con predisposizione per accumulo. In sintesi: una casa già perfettamente pensata per offrire benessere abitativo e gestione efficiente dei consumi. Una soluzione di difficile confronto sul mercato locale, perfetta per chi cerca una villa singola di grande respiro, inserita in uno dei quartieri certamente piu' interessanti, già completa sotto il profilo degli spazi, della qualità e della funzionalità, valida alternativa a una nuova costruzione senza dover affrontare tempi, costi e complessità di un progetto da zero.
- Riferimento: RVS1180
- Immobile in: vendita
- Prezzo: Trattativa riservata
- Superfice: 500 M2
- Zona: San Giovanni Lupatoto
- Camere: 7
- Bagni: 5
- Tipologia: Villa
- Cucina: abitabile
- Soggiorno/Salotto: 1
- Box/Posto Auto: triplo
- Livelli: 4
- Serramenti esterni: scuri
- Serramenti interni: doppio vetro/legno
- Condizione immobile: ottimo
- Stato stabile: Stato stabile: ottimo
- Arredamento: parziale
- Stato Arredamento: ottimo
- Riscaldamento: pavimento
- Tipo Riscaldamento: metano
- Aria condizionata: Sì
- Giardino privato: Sì
- Balcone: Sì
- Cantina / Ripostiglio: Sì
- Soffitta: Sì
- Taverna: Sì
- Cancello Elettrico: Sì
- VideoCitofono: Sì
- Antifurto: Sì
- Anno costruzione: 2010
Piantine
Posizione
Immobili simili
-
RUSTICO DA RISTRUTTUR ...
Colognola Ai Colli, Colognola ai Colli
-
ELEGANTE VILLA CENTRA ...
Campagnola, Zevio
-
TRILOCALE SU DUE LIVE ...
Pozzo, San Giovanni Lupatoto

Richiedi informazioni